
In September 2020, the State Government announced the relocation of ECU Mount Lawley to the CBD campus as part of the ‘Perth City Deal’ partnership between the Federal Government, State Government and City of Perth. Subsequently, Development WA, on behalf of State Government which owns the land undertook several community engagement sessions to inform the development of a Master Plan for the site.
On 17 February 2026, the State Government announced that a vision for the ECU Mount Lawley Redevelopment had been finalised, with the Master Plan being a blueprint for the transformation of this unique, centrally located site into a vibrant and inclusive urban community.
The Master Plan which can be viewed on the DevelopmentWA project page here, proposes:
- Up to 1,100 new homes in a walkable green precinct just five kilometres from Perth CBD
- Approximately 15 per cent of the site dedicated to public open space and green corridors
- Retention of the Western Australian Academy of Performing Arts buildings, Library, and Administration provide the opportunity for future arts, cultural, youth, and education use
To give effect to this Master Plan, a number of things need to happen.
Firstly, as the site is reserved under the Metropolitan Region Scheme (MRS) as ‘Public Purpose – University’, a change to the MRS is needed. The Western Australian Planning Commission (WAPC) initiated advertising of an amendment to rezone the site ‘Urban’ and ‘Public Purpose’ in July 2025, with this yet to be determined. The Urban zoning reflects a future development area that requires detailed planning to occur, whereas the Public Purpose reservation allows continued use of the WAAPA site for creative or educational uses.
Detailed land use planning for the site also needs to be undertaken. To meet this requirement, in January 2026, a draft Precinct Structure Plan (PSP) was submitted for assessment by Development WA to the City.
The purpose of the proposed PSP is to provide a framework for land use, zoning, subdivision, design and development requirements. The PSP proposes:
- Between 700 and 1100 dwellings comprising single and multiple dwellings
- A future projected population between 1360 and 1954 residents
- Approximately 1,900 – 2,400m2 shop/retail floorspace (including a supermarket)
- Approximately 2,600m2 of other commercial floorspace
- A 2.64ha area of Public Open Space
- A future Primary School in an ‘Inner City’ format
- The reuse of the existing Administration, Library and WAAPA buildings on site for community uses, some of which are yet to be determined.
The PSP also contains technical documents that need to show that the area is capable of being developed. These documents relate to matters such as traffic movements, environmental considerations and a retail impact assessment.
Although Council does not approve the structure plan, with the WAPC being the determining authority, the City is required to assess the document, publicly advertise the proposal and provide a recommendation to the WAPC.
FAQs
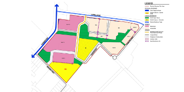
The ECU Mount Lawley PSP area relates to the area outlined on Plan 1 – PSP Map (see here) which is bounded by Central Avenue to the north, Bradford Street to the south, Stancliffe Street to the east and Alexander Drive to the west. The total land area is approximately 18.75 hectares.
A PSP is a land use planning document that guides future land use and development and is an early step in establishing or redeveloping urban areas.
A PSP can show details such as housing density, road networks, areas of public open space and commercial areas. A PSP indicates the way in which an area is to be developed and provides a framework to guide Council when it considers subdivision and development proposals.
The planning framework in Western Australia requires a decision maker to have ‘due regard’ to a PSP when considering any development applications received.
In the context of the PSP, a decision-maker needs to demonstrate that the PSP has been considered, and if a there is a departure from the PSP, there needs to be a compelling reason to depart from the standard.
The City or the owner of land may prepare and submit a PSP. In this instance, the ECU PSP was submitted by consultants on behalf of the State’s development agency, Development WA, and the landowner (State of Western Australia).
The PSP sets out the location of land uses, road and pedestrian networks as well as public open space areas. The PSP proposes residential development, public open space, commercial, community and retail uses as well as a primary school site. The road layout and distribution of land use areas are shown on the attached Structure Plan map.
The PSP proposes:
Between 700 (base growth) and 1100 (high growth) dwellings comprising single and multiple dwellings – this would depend on the market
A future projected population between 1360 (base growth) and 1954 (high growth) residents which will depend on the extent of development
Approximately 1,900 – 2,400m2 shop/retail NLA floorspace (including a local-scale supermarket)
Approximately 2,600m2 of other commercial floorspace
2.64ha of Public Open Space
A future Primary School in an ‘Inner City’ format
The reuse of a number of existing buildings on site for community uses, some of which are yet to be determined.
The proposed PSP is structured around three ‘character’ areas or precincts which have distinct features and land uses. The main components of the character areas include the following:
Gateway – As the name suggests this precinct will form a prominent landmark entry to the precinct which seeks to deliver a mixed-use urban environment to include apartments, neighbourhood scale retail as well as commercial and community land uses. Primary vehicle access is provided from Alexander Drive with proposed active commercial frontages to this road. The precinct provides a central public open space area that provides opportunities for passive and active recreation. The minimum residential yield for the Gateway Character area is 175 dwellings with a maximum plot ratio of 4.5. Plot ratio sets how much building floor space can be developed compared to the size of the land. In simple terms, it limits how big a building can be overall, rather than setting a strict number of storeys.
Creative Campus Character Area – To reflect the legacy of the site, retention of significant buildings has been incorporated into the identity of this area which includes a designated primary school site and allows for the introduction of new residential buildings which consider the existing building scale and materiality. Bradford Street is to be the main entry into the Creative Campus precinct with a green forecourt, retention of the WAAPA building and retention of mature canopy trees. The precinct includes connections between the surrounding public transport routes and pedestrian pathways. The minimum residential yield for the Creative Campus area is 230 dwellings with a maximum plot ratio of 3.5 for new development.
Garden Living Character Area – The key objectives of the Garden Living Character Area are to create a mix of new medium density housing and enables the adaptive reuse of the retained student housing to provide residential diversity. Green linkages are included to create shady walkable areas that connect to public open spaces. The village design delivers a contemporary and sustainable residential environment which includes preservation and enhancement of the ephemeral water body in the north-east as a defining landscape featur The minimum residential yield target for the Garden Living Character Area is 295 dwellings with maximum height limits ranging from 4 -7 storeys across the character area.
In accordance with the Planning and Development (Local Planning Schemes) Regulations 2015, the City must advertise a PSP that contains all the required information. For this reason, the City is now advertising the proposed PSP.
The comments received during advertising will be considered by Council when they consider their recommendation to the WAPC.
If you want to provide comments on the PSP, you can do this by lodging a written submission, giving the reasons for your views on the PSP. The City must receive your submission by 24 April 2026. You can email your comments to the City at cityplanning@stirling.wa.gov.au or write to the City at:
City of Stirling
(ECU Mount Lawley Redevelopment Precinct Structure Plan)
25 Cedric Street
Stirling WA 6021
You can also provide your comments online at the City’s Community Consultation Submission Form.
All stakeholders are welcome to lodge a submission. The City’s Community Consultation Submission Form accepted submissions from individuals both within and outside the City.
Council must consider the planning merits of the proposal and the planning issues that have been raised in the submissions received. The City asks that comments be limited to those directly related to the planning merits or impacts of the proposed Structure Plan.
Matters that cannot be considered valid planning reasons for objecting to a proposal include:
- Perceived loss of property value
- Private disputes between neighbours including access and egress and easements
- Impact of construction work
- Trade competition concerns (in most circumstances)
- Matters that is controlled under other legislation.
The proposed PSP contains a number of technical documents that need to show that the area is capable of being developed. The PSP documents relate to matters such as traffic movements, environmental considerations and retail impact assessment. An assessment of these documents will be undertaken by City Officers during the advertising period.
Once the advertising period has concluded, the City Administration will review all of the submissions received. A report to Council will then be prepared, which will include the City Administration’s assessment of the proposed PSP documents and address all the comments received during the advertising period.
Council is to consider the report and subsequently provide a recommendation (within 60 days of the conclusion of advertising) to the WAPC on whether the proposed PSP should be approved by the Commission, with or without modifications. The WAPC will make a final decision to approve or refuse the PSP. This process can take several months and the City will advise submitters of the Commission’s decision when it is advised of the outcome.
If the WAPC decides to approve the Structure Plan, it comes into effect immediately.
It is anticipated that the area will be developed in stages, and is expected to be built out by around 2040.
As part of the community engagement process, Development WA will be running separate drop‑in, open community information sessions focused on the draft Precinct Structure Plan.
Community members are welcome to attend at any time during the sessions below:
Wednesday 25 March 2026
Community members are welcome anytime between 5:30pm – 8:00pm
Terry Tyzack Aquatic Centre Activity Room (turn left at reception)
Wednesday 1 April 2026
Community members are welcome anytime between 5:30pm – 8:00pm
Inglewood Community Hall (next to Inglewood Library)
These informal sessions will provide the opportunity to view information, chat with the ECU Mount Lawley project team from DevelopmentWA and ask questions about the Precinct Structure Plan.
For more information, or to receive this information in an alternate format, please contact the City on (08) 9205 8555 or visit www.stirling.wa.gov.au/enquiry.



